相關資訊
Related News- 江蘇歐麥朗亮相上海國際工業展!雙節能核心設備+一站式服務賦能企業降本增效
- 啤酒廠節能新路徑:高溫水源熱泵讓 “廢熱” 變身生產熱水
- PVT 熱泵系統:高效集成的雙能利用創新方案
- 歐麥朗空氣能高溫熱泵:破解涂裝線脫脂液加熱痛點的優選方案
- PVT光伏板+光伏直驅熱泵:工廠生活熱水供應的節能新方案
- 冷卻塔余熱回收:高溫水源熱泵應用方案
- 空氣能熱泵 + PLC 智能控制:破解天然氣壓差發電復熱難題
- 歐麥朗高溫熱泵在汽車輪轂涂裝前處理中的創新應用
- 高溫熱泵助力連續鍍:從工藝適配到效益提升
- COP 達 3-5、節能超 60%!熱泵技術為金屬件清洗工藝降本增效提供關鍵路徑
- 空氣能熱泵在汽車配件清洗恒溫熱水供應中的核心價值
- 節能黑科技:高溫水源熱泵如何重塑飲料無菌灌裝生產線的能源效率
聯系我們
Contact Us
江蘇歐麥朗設備安裝工程有限公司
地址:新北區龍虎塘新區產業園區
電話:13706164559
手機:13706164559(微信同號)
QQ:2242597105
地址:新北區龍虎塘新區產業園區
電話:13706164559
手機:13706164559(微信同號)
QQ:2242597105
【多能源熱水系統】多水箱承壓式空氣能+太陽能熱水系統
更新時間:2021-05-26 點擊:780
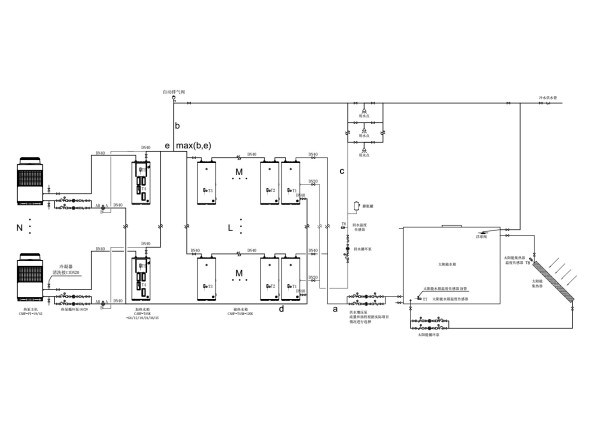
這套系統是開式集中式的太陽能集熱系統和多水箱閉式空氣能系統相結合。加大太陽能水箱可以增加太陽能的能效,增加儲熱水罐的儲水量,同時水箱采用開式水箱從而減輕水箱自重帶來的承重負荷。而供水水箱則采用分散式閉式多個小水箱,其優點在于加大用水量的同時,減少了屋面荷載。并且單個水箱占地面積小,可以自由排布,適應各種安裝環境;而且用水末端承壓出水,不需要靠增加供水水泵來加壓供水,使得整個系統更加節能,用水末端更加舒適。
這套系統的輔助熱源采用空氣能熱泵,而非傳統的電加熱或者燃氣。相對這兩種能源不同的是,空氣能熱泵是水電分離,而且能耗是電加熱的1/4,更加安全和節能,而且空氣能也是屬于國家認證的節能產品,安全環保,運行壽命長,使用方便安全。





上一條信息:常見溫室大棚采暖方式比較
下一條信息:熱泵烘干機應用于超濾膜的烘干


小程序