相關資訊
Related News- 【官方公告】江蘇歐麥朗設備安裝工程有限公司 2026 年春節放假通知
- 輪轂烘干革命:空氣能熱泵替代傳統電加熱
- 歐麥朗熱泵賦能不銹鋼蝕刻工藝:節能提效雙突破
- 復疊高溫熱泵賦能鈉電池制造:反應釜加熱的高效解決方案
- 水產養殖控溫優選:空氣能恒溫熱泵
- 替代傳統加熱:高溫空氣源熱泵在金屬加工業的實踐價值
- 光伏純水加熱新思路:水源熱泵 “吃廢熱”,85℃新水省電費
- 空氣能高溫熱泵:線路板水平線電鍍的節能控溫新選擇
- 歐麥朗熱泵余熱回收在屠宰場的應用
- 空氣能高溫熱泵:解鎖超聲波清洗槽加熱新姿勢
- 江蘇歐麥朗亮相上海國際工業展!雙節能核心設備+一站式服務賦能企業降本增效
- 啤酒廠節能新路徑:高溫水源熱泵讓 “廢熱” 變身生產熱水
聯系我們
Contact Us
江蘇歐麥朗設備安裝工程有限公司
地址:新北區龍虎塘新區產業園區
電話:13706164559
手機:13706164559(微信同號)
QQ:2242597105
地址:新北區龍虎塘新區產業園區
電話:13706164559
手機:13706164559(微信同號)
QQ:2242597105
歐麥朗雙源熱泵在污水處理中的應用
更新時間:2023-06-21 點擊:887
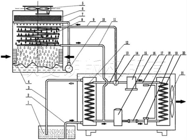
隨著經濟的飛速發展,人們生活水平不斷提高,生活品質也在相應的提升。城市污水是水資源利用的重要一環。每個污水處理廠平均每天的處理量都在百噸伊桑以上,污水處理的量跟氣溫有一定的聯系,在冬季污水溫度低流動性差,厭氧池溫度低,微生物不參與活動,導致污水處理的量有所下降,在冬季如何保證能源較大化利用是污水處理的一個重要環節。
雙源熱泵與污水處理技術是當前環保領域的熱門話題之一。雙源熱泵技術是利用地熱與空氣能源作為能源源頭,通過一定的技術手段將室內或室外的熱量傳遞給需要加熱或制冷的空間,并實現節能減排的目的。而污水處理技術是指將城市、工業或農村等生活污水經過一定的處理過程,使之達到排放標準或能夠循環利用的水質要求的技術。

通常污水處理厭氧池需要升溫,而污水在處理結束后的水溫通常都在15度左右。如何有效的進行資源回收利用是節能的重要環節。設計思路采用雙源熱泵機組,以回收處理結束后的水中熱量,將排放水溫由原來的15度降至7度進行排放,回收的熱量用于厭氧池,剩余部分采用空氣作為熱源進行補足,保證同等情況下資源較大化的回收和利用。
總之,雙源熱泵技術與污水處理技術的結合可以實現能源的循環利用和節能減排,推動綠色環保產業的發展。

上一條信息:【養殖恒溫案例】三亞水產魚苗種加熱恒溫系統
下一條信息:【工業加熱】空氣能熱泵在超聲波清洗加熱應用


小程序